Plan 028-00101
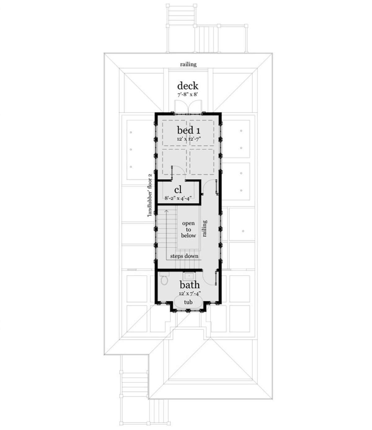
Floor Plans
DETAILS
HEATED Sq Ft
| Total Heated Area | 1.581 sq. ft. |
| 1st Floor | 1.185 sq. ft. |
| 2nd Floor | 3961 sq. ft. |
| Bedrooms: | 3 |
| Full Baths: | 2 |
| Floors: | 2 |
| Width: | 27ft. |
| Depth: | 62ft. |
| Height: | 33ft. |
| Foundation: | Piling Foundation |
| Main Roof Pitch: | 4:12 |
| Exterior Framing: | 2x6 Wood |
CEILING HEIGHTS
| First Floor: | 10 |
| Second Floor: | 9 feet |

















