Plan 028-00101
Floor Plans
DETAILS
HEATED Sq Ft
| Total Heated Area | 2.532 sq. ft. |
| 1st Floor | 1.507 sq. ft. |
| 2nd Floor: | 1.025 sq. ft. |
| UNHEATED Sq Ft | |
| Total Unheated Area: | 803 sq. ft. |
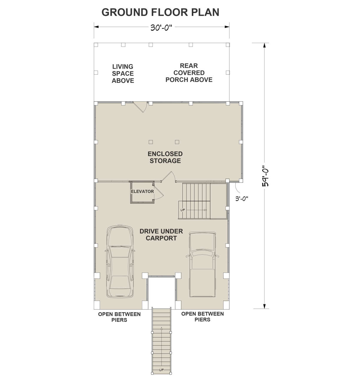
| Garage: | 803 sq. ft. |
| PORCH & PATIO Sq Ft | |
| Total Porch/Patio Area: | 349 sq. ft. |
| Front Porch: | 128 sq. ft. |
| BackPorch: | 221 sq. ft. |
| Bedrooms: | 4 |
| Full Baths: | 4 |
| Floors: | 3 |
| Garage Size: | 2 cars |
| Width: | 33ft. |
| Depth: | 59ft. |
| Height: | 34ft.-9in. |
| Foundation: | Pier FoundationPiling Foundation |
| Main Roof Pitch: | 8:12 |
| Exterior Framing: | 2x6 Wood |
CEILING HEIGHTS
| First Floor: | 9 feet |
| Second Floor: | 9 feet |
| Third Floor: | 9 feet |








