Plan 028-00101
Floor Plans
DETAILS
HEATED Sq Ft
| Total Heated Area | 3.699 sq. ft. |
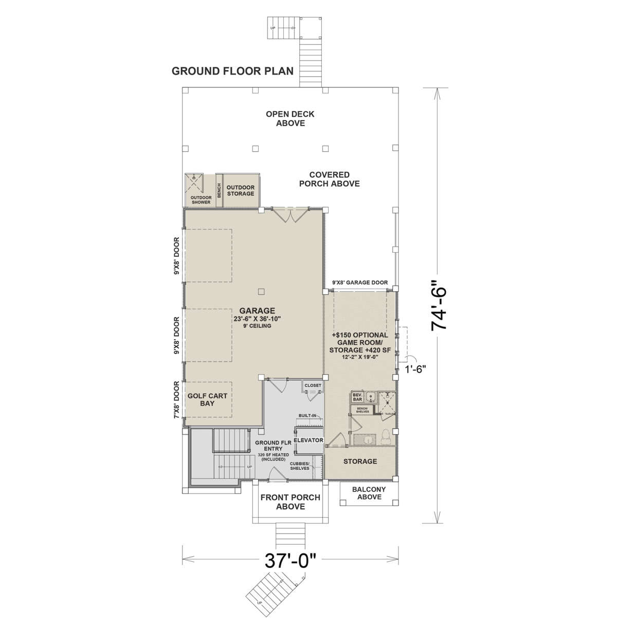
| 1st Floor | 320 sq. ft. |
| 2nd Floor: | 1.768 sq. ft. |
| 3rd Floor: | 1.611 sq. ft. |
| UNHEATED Sq Ft | |
| Total Unheated Area: | 1.245 sq. ft. |
| Garage: | 825 sq. ft. |
| Storage Area: | 420 sq. ft. |
| PORCH & PATIO Sq Ft | |
| Total Porch/Patio Area: | 536 sq. ft. |
| Front Porch: | 131 sq. ft. |
| BackPorch: | 405 sq. ft. |
| Bedrooms: | 5-6 |
| Full Baths: | 5 |
| Floors: | 3 |
| Garage Size: | 2 cars |
| Width: | 37ft. |
| Depth: | 74ft.-6in. |
| Height: | 34ft.-9in. |
| Foundation: |
Pier FoundationPiling Foundation |
| Main Roof Pitch: | 3:12 |
| Exterior Framing: | 2x6 Wood |
CEILING HEIGHTS
| First Floor: | 9 feet |
| Second Floor: | 9 feet |
| Third Floor: | 9 feet |

















