Plan 028-00101
Floor Plans
DETAILS
HEATED Sq Ft
| Total Heated Area | 1.672 sq. ft. |
| 1st Floor | 1.085 sq. ft. |
| 2nd Floor | 587 sq. ft. |
| UNHEATED Sq Ft | |
| Total Unheated Area: | 642 sq. ft. |
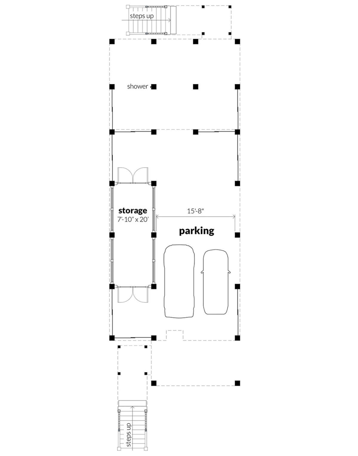
| Garage: | 642 sq. ft. |
| Bedrooms: | 4 |
| Full Baths: | 4 |
| Floors: | 2 |
| Garage Size: | 4 cars |
| Width: | 26ft. |
| Depth: | 89ft. |
| Height: | 36ft.-4in. |
| Foundation: | Piling Foundation |
| Main Roof Pitch: | 4:12 |
| Exterior Framing: | 2x6 Wood |
CEILING HEIGHTS
| First Floor: | 10 feet |
| Second Floor: | 9 feet |






