Plan 51974HZ
Floor Plans
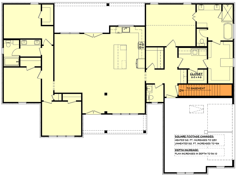
Square Footage Breakdown
| Total Heated Area | 2.200 sq. ft. |
| 1st Floor | 2.200 sq. ft. |
| Porch, Front | 123 sq. ft. |
| Porch, Rear | 250 sq. ft. |
| Storage | 32 sq. ft. |
Beds/Baths
| Bedrooms | 4 |
| Full bathrooms | 2 |
| Half bathrooms | 1 |
Dimensions
| Width | 74' 6" |
| Depth | 50' 6" |
| Max Ridge Height | 25' 0" |








