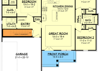
3-Bed New American Ranch Home Plan – 1398 Sq Ft
Square Footage Breakdown
| Total Heated Area |
1.398 sq. ft. |
| 1st Floor |
1.398 sq. ft. |
| Porch, Front |
133 sq. ft. |
| Porch, Rear |
108 sq. ft. |
Beds/Baths
| Bedrooms |
3 |
| Full bathrooms |
2 |
Dimensions
| Width |
52' 4" |
| Depth |
47' 10" |